Wang Residence

Interior Architecture / Interior Design / FF&E Consulting

Taoyuan, Taiwan

Year 2020

When a free-barrier environment is a basis for a home with a disabled patient and a home caregiver, what other design thinking can be made to provide a better living quality?

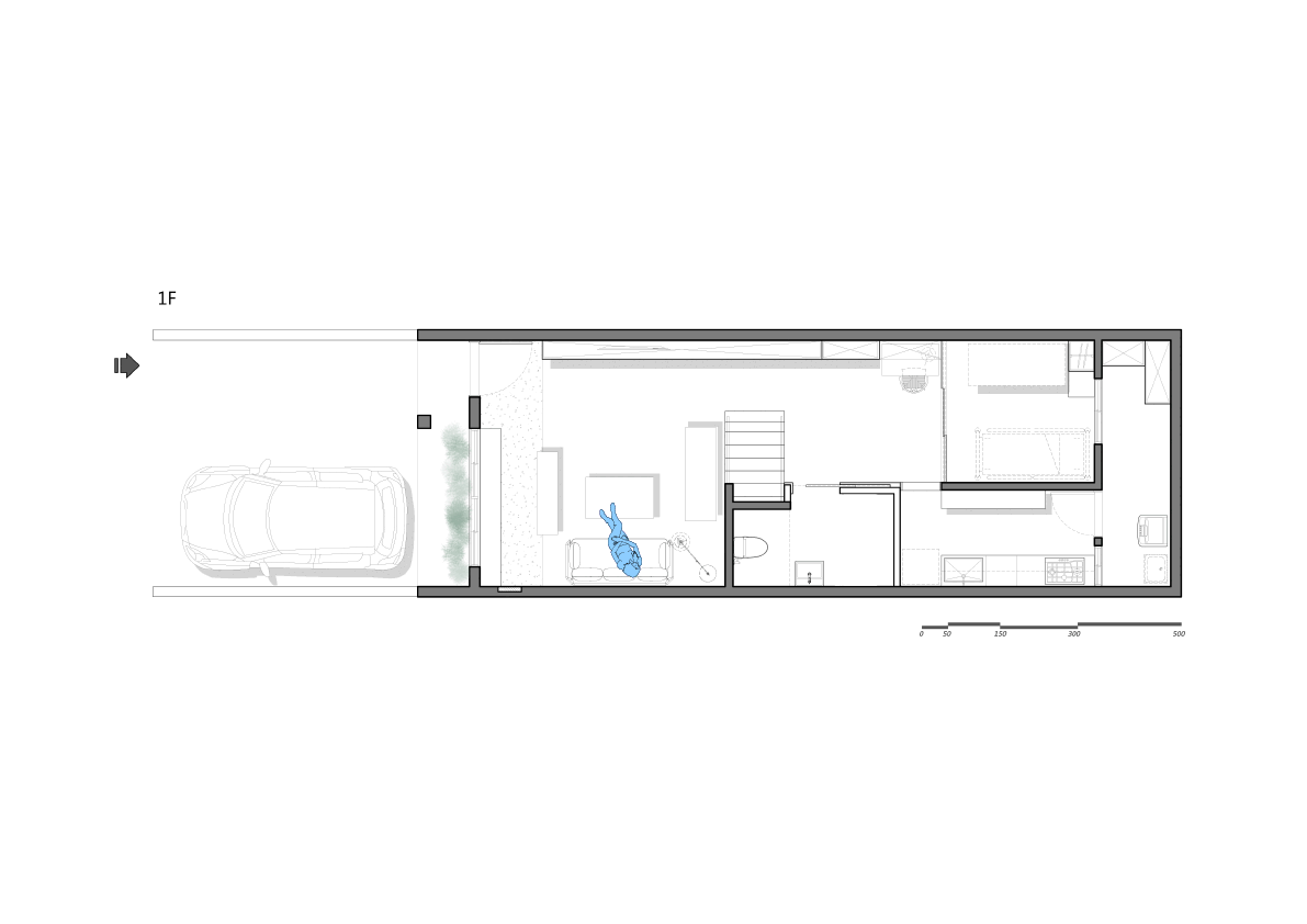
The case applied the home caregivers' angle to start reminding us of the focus of primary users in the caring domestic space. We focus on two circulations in the space, caring and living.

We reconsidered the relationship between domestic space and long-term care to make caring jobs easier. In this case, the home caregiver is a 60-year-old wife, and the care receiver is a husband who is disabled and remains in bed. After analyzing their living behaviour, we suggest the users combine the living room and dining room to spare another buffer area for radius-turn of wheelchairs and emergency use. The spare room was remodeled into a nursery room beside the kitchen and enlarged free-barrier bathroom, forming those spaces into a caring triangle-caring, nurturing, sanitizing.

One critical point of the project is focusing on the home caregiver's mental health. Providing care to people often means committing most of their physical and emotional energy to them. A home caregiver may end up neglecting their needs and exhausting them to the point of stress and burnout.

We would like to bring back the joy of home caregivers' lives. In this case, the female host used to like handcrafting. We created the corner for the sewing machine at the end of the linear multifunctional bookcase, showing her she still deserves to live a life. The living and dining areas are separated by the existing staircase, making the space a healing space beside the caring space. The grey-green paint, the warm wooden tone, and a paper lantern suspending lamp create a warm, cozy and welcoming atmosphere.

Previous
Previous

Kao's House